Tam quan kiêm gác chuông gồm 2 tầng 8 mái. Gian giữa treo quả chuông có tên Đại Bi tự cao 1,10m, đường kính 0,60m đúc năm Cảnh Thịnh thứ 6 (1798), gian bên trái treo khánh đồng cao 1,03m, rộng 1,34m. Trên khánh đúc nổi hai mặt chữ: Đại Bi tự khánh, Bính Tý niên khánh (1818). Khu Tam bảo xưa kia có mặt bằng hình chữ “đinh” nhưng khoảng năm 1950 đã tu sửa và nâng cao chừng 1m và làm thêm một nhà ngang phía sau thành kiểu chữ “công”.
Tiền đường gồm 7 gian 2 chái, dài 19,5m, xây kiểu tường hồi bít đốc. Hạng mục này chỉ còn hàng cột cái ngoài bằng gỗ, còn các cột khác đều thay bằng gạch hoặc lẩn vào tường. Mỗi vì được đặt trên 5 hàng chân cột tạo cho mái trước dài ra để phần hiện thông thoáng. Từ 3 gian giữa của Tiền đường kéo về sau là toà nhà dọc 3 gian. Xưa kia, nó vốn là toà Thiêu hương - Thượng điện. Dãy nhà sau mang tính hậu đường. Từ khu Tam bảo có cửa thông sang dẫn tới nhà khách, nhà tổ. Kiến trúc tuy đã được tu sửa, nhưng những di vật còn lại rất đặc sắc.
Tiền đường bài trí hệ thống tượng gồm Hộ pháp ngồi trên sư tử, Đức Ông và Thánh Hiền ngồi trên ngai, còn tượng Giám trai và Thổ địa đều là những pho được tạo tác đầu thế kỷ XX. Hồi bên trái có 2 tấm bia nhỏ, kê tên 20 vị đỗ đạt của địa phương.
Một nửa toà Thiêu hương giành để nhà sư thắp hương tụng niệm, nửa sau để bài trí hệ thống tượng pháp. Hàng trên cùng là bộ Tam thế, hàng thứ 2 là bộ A Di Đà, hàng thứ ba là bộ Quan Âm chuẩn đề. Những pho tượng này có kích thước lớn hơn người thực, được tạo tác trau chuốt, hoạ tiết trang trí tinh xảo mang phong cách thế kỷ XVII - XVIII. Phía dưới có 2 hàng Tuyết Sơn, Di Lặc và Thích Ca sơ sinh có niên hiệu thời Nguyễn.
Đặc biệt, ở Thiêu hương còn có bệ đá hoa sen khối hộp dài 2,65m, rộng 1,17m, cao 1,67m, 4 góc chạm 4 chạm chim thần Garuda, mặt trước chạm rồng, mặt sau chạm hổ và sư tử. Những nét chạm khắc này là đặc trưng tiêu biểu của nghệ thuật thời Trần có niên hiệu Long Khánh thứ 2 (1374) - Đây là một trong hai hiện vật trên địa bàn xã Dương Hòa được lập hồ sơ đề nghị công nhận “Bảo vật quốc gia”. Trong toà nhà này còn bài trí nhiều pho tượng thời Lê - Nguyễn.
Hậu đường được xây cao hơn so với Tiền đường và Thiêu hương. Trên cùng là tượng Phật, thấp hơn là tượng đức Thánh Trần, tượng Mẫu, tượng cô, cậu, hai bên là hai động đắp bằng đất với vô số tượng mô tả thế giới theo quan niệm nhà Phật. Từ tội nhân bị tra tấn đến Thần Phật ở trên cao. Đây là hình ảnh sống động về nhân sinh quan của Phật giáo.
Chùa Đại Bi đã được Bộ Văn hoá và Thông tin xếp hạng di tích kiến trúc nghệ thuật năm 1996./.

Hình ảnh Chùa Đại Bi trước khi tu bổ

Chùa Đại Bi tu bổ năm 2025
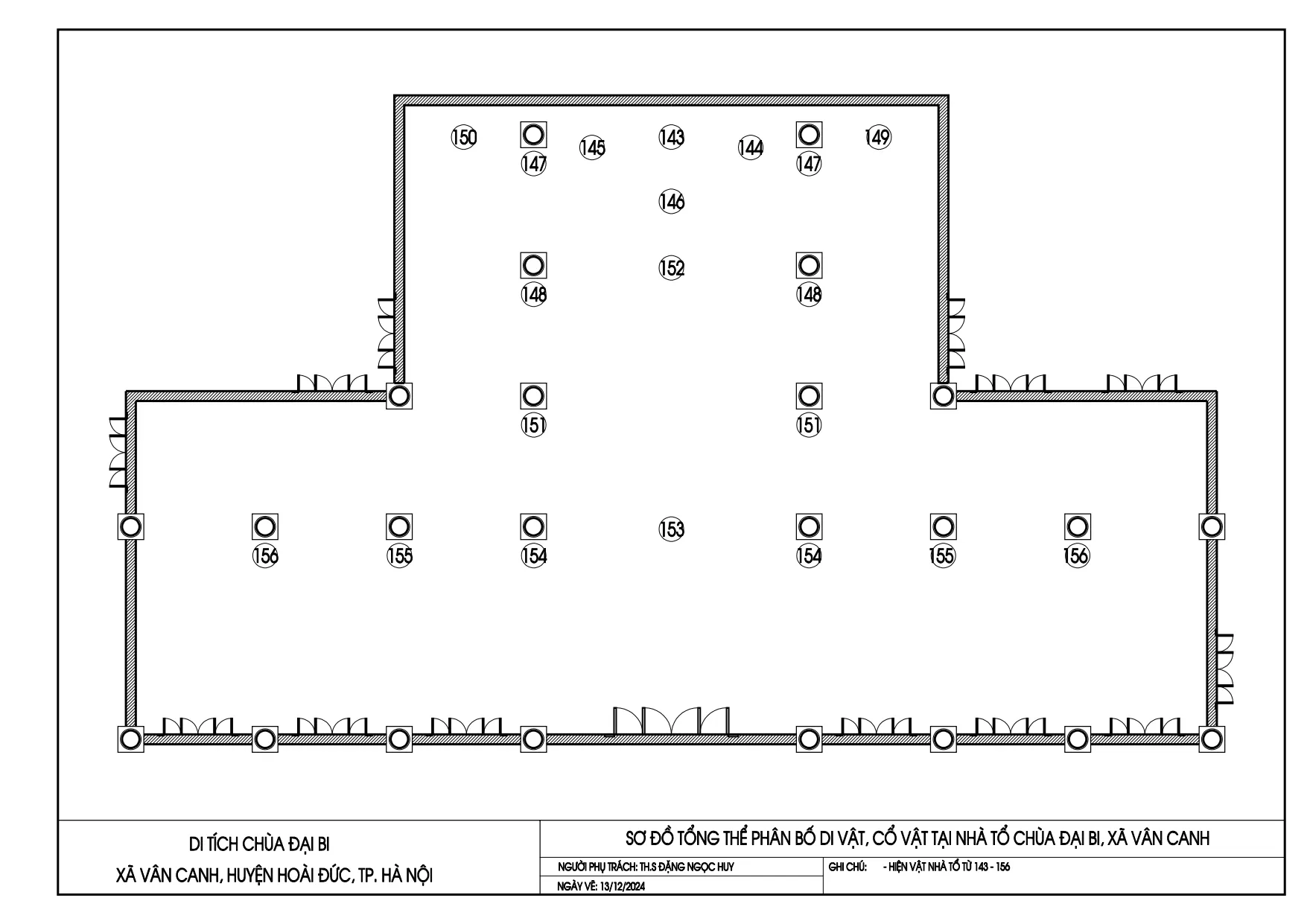
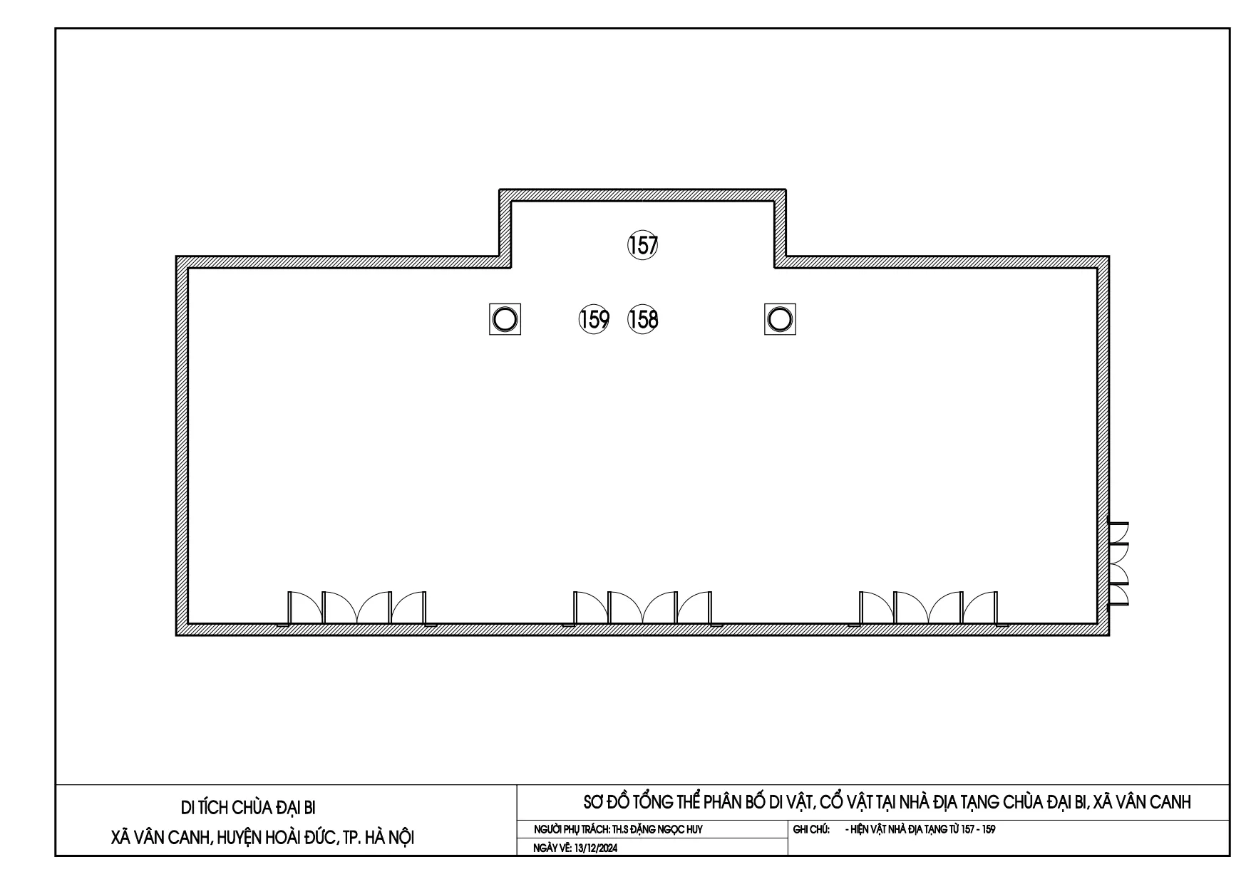
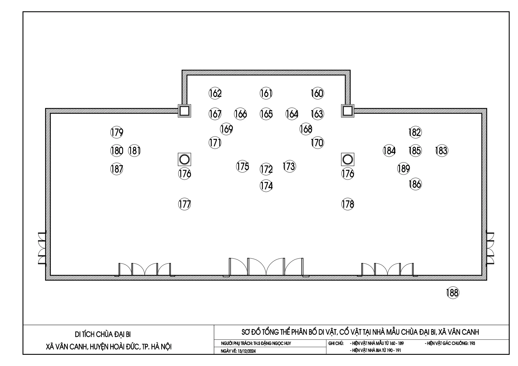
Sơ đồ phân bố hiện vật Chùa Đại Bi








