LÝ LỊCH DI TÍCH TỪ CHỈ - TRẦN DANH TIÊU
I. TÊN GỌI:
Làng Yên Sở, xã Dương Hòa có một cụm di tích liên quan tới vị danh nhân Trần Danh Tiêu - Đông các đại học sĩ của triều đình nhà Lệ. Đó là Tử chỉ của dòng họ Trần Danh nơi dòng họ Trần thờ phụng, tưởng niệm danh nhân Trần Danh Tiêu và các vị tiên tổ. Từ xưa tới nay di tích vẫn được gọi là Từ chỉ họ Trần Danh.
II. ĐỊA ĐIỂM - ĐƯỜNG ĐI ĐẾN DI TÍCH:
1. Địa điểm:
Từ chỉ họ Trần Danh thuộc Thôn 3 Yên Sở, xã Dương Hòa . Yên Sở xưa vào đầu thế kỷ XV có tên là Cổ Sở. Về sau này mới đổi tên là Yên Sở, có tên nôm là làng Giá Lụa, là một làng Việt cổ có lịch sử phát triển từ xa xưa.
Trước 1945, Yên Sở là xã thuộc tổng Dương Liễu, huyện Đan Phượng, tỉnh Hà Đông. Sau 1945, Yên Sở thuộc huyện Hoài Đức, Hà Đông. Năm 1965 là Hà Tây, đến 1976 là Hà Sơn Bình. Từ 1979 Yên Sở thuộc Hà Nội, đên 1991 lại thuộc Hà Tây. Và hiện nay thuộc Thành phố Hà Nội.
2. Đường đi đến di tích:
Để đến được di tích chúng ta có thể đi theo nhiều đường. Nhưng từ thị xã Hà Đông, thuận lợi hơn cả là theo đường tỉnh lộ 430 đi Nhổn. Qua Đại Mỗ lên tới ngã tư Canh, rẽ trái vào đường trục huyện. Theo con đường này qua ngã tư Sơn Đồng, chạy thẳng đi Cát Quế. Tới địa phần đất làng Yên Sở, rẽ tay trái theo đường trục của xã là vào tới được di tích.
Cũng có thể theo quốc lộ 32 tới Trạm Trôi rẽ vào con đường trục đi Sơn Đồng rồi về Yên Sở, hoặc từ đường Láng - Hòa Lạc tới đầu đê Phương Viên, rẽ vào địa phận xã Song Phương cũ là tới được đi tích.
III. SỰ KIỆN NHÂN VẬT LỊCH SỬ:
Theo gia phả dòng họ Trần Danh thôn 3 Yên Sở, hiện nay đang lưu tại nhà thờ, theo các nguồn tư liệu thư tịch cổ nói về dòng họ Trần Danh cho thấy nhà thờ họ Trần Danh cũng như nhiều nhà thờ họ khác, được xây đựng trước hết để thờ tổ tiên. Nhưng ở Yên Sở, dòng họ Trần Danh còn có thêm một ngôi từ chỉ cũng là nơi thờ các vị khởi tổ - danh nhân của dòng họ đã có nhiều cống hiến cho quê hương đất nước. Vị tổ họ đó là danh nhân Trần Danh Tiêu, đỗ tiến sĩ từ năm 25 tuổi, làm quan trải 3 triều đại: Long Đức, Vĩnh Hựu, Cảnh Hưng của các vua nhà Lê, tới chức Hàn Lâm đại học sĩ. tước Phượng lĩnh Bá trụ quốc.
Theo gia phả dòng họ Trần Danh Tiêu ở Yên Sở do Trần Việt Tuấn, cháu gọi Trần Danh Tiêu bằng bác ruột, soạn vào năm Cảnh Hưng 45 (1784) cho biết, Trần Danh Tiêu sinh vào giờ Thân ngày 13 tháng 5 năm Kỳ Sửu (1709). Ông có tên tự là Phúc Nhã, hiệu là Cổ Trai tiên sinh. Cha là Đan Khê Hầu Nguyễn Tướng Công. Khi còn nhỏ tuổi, ông có tư dung như ngọc quý, tư chất đẹp đẽ, tuy chưa gặp thời hiển đạt, nhưng cũng biết được là người phi thường. Đến năm 12 tuổi đã để tâm gắng sức hơn và theo mẹ cải họ Nguyễn thành họ Trần vì cụ ngoại là Cao Đường Đại Nhân vốn đồng thi lễ, có nghĩa lý phép tắc, nơi phát nguồn điều tốt đẹp tinh thần. Đó là cụ Giám sinh Trần Danh Khiêm.
Từ đó ngày càng phát triển tài năng, bạn bè cũng vui mừng mở ra một chí phái lớn đạt được nguồn gốc đạo lý. Năm Trần Danh Tiêu 15 tuổi, năm Quý Mão ứng thi trúng sinh đồ. Sau đó tới nhập học với thầy Trần Hiền ở xã Vân Canh, huyện Từ Liêm. Thấy trò cùng nhau rèn luyện, học hành ngày càng tiến bộ. Đến năm 24 tuổi, khoa Nhâm Tý lĩnh hương thư Năm 25 tuổi, khoa Quý Sửu (1733) thầy trò cùng đi thi đình, khoa thi này có 18 người đỗ. Trần Danh Tiêu có tên thứ 17, thầy trò cùng đỗ trong khoa thi. Thấy là Trần Hiền, người xã Vân canh. Bạn học là Trần Mô người xã Di Ái và Trần Đồng, người Đan Phượng Thượng. Mọi người đều gọi là Tứ Trần (bốn thấy trò họ Trần). Cha mẹ đều mừng rỡ. Kịp gặp kỳ tuyển quan. Ông làm quan trải 3 niên hiệu nhà Lê: Long Đức, Vĩnh Hựu, Cảnh Hưng.
Năm Long Đức thứ 3, ông làm quan Tiền công chiếu văn quân tư luân. Năm Vĩnh Hưụ thứ 3 (1737) ông lãnh chức quan Giám sát ngự sứ Hải Dương; Năm Vĩnh Hựu thứ 6 Giám sát ngự sử Trần Danh Tiêu kiêm Mậu Lâm tả lang Hàn lâm viên đặc chế. Năm Cảnh Hưng thứ 22 được phong tặng trung trinh Đại phu Lạng Sơn đẳng sứ, Tán trị thừa chính sứ, tước Đan khê hầu. Năm Cảnh Hưng 30 ông được giao làm hiến sát xứ Thanh Hoá. Đến Cảnh Hưng 37 ông giữ chức Đông các Đại học sĩ. Đến năm Cảnh Hương 41 ông được phong Đặc tiến kim từ vĩnh lộc đại phu Hàn lâm viện thừa chỉ, Phượng lĩnh Bá trụ quốc.
Trần Danh Tiêu mất ngày 1/9 năm Canh Tuất (1790), hưởng thọ 72 tuổi. Mộ táng tại Liễu đình xứ. Như vậy cuộc đời làm quan của Trần Danh Tiêu trải 43 năm. Trong thời gian ấy, ông đã làm tới Hiến sát của 3 tỉnh Tuyên Quang, Hải Dương và Thanh Hoá, làm tham chính 2 lần ở thái Nguyên và Thanh Hoá. Suốt cuộc đời làm quan ông không làm điều gì phi nghĩa. Gia đình thanh bạch, ông yên tâm với công việc ở nhiệm sở, làm việc hăm hở, không sợ thua kém ai. Tấm lòng trung của ông mọi người đều biết tiếng, biết tên. Duy chỉ có năm Canh Ngọ - 1750, ở kỳ thi hương ông phụng mệnh làm quan chấm thì tại trường Hải Dương, vì bị quan Hiển sứ có lòng gian hiểm vụ cho ông làm điều gian đới nên ông phải nghỉ làm quan mất 8 năm. Sau đó mọi điều sáng tỏ, nỗi oan được giải, ông lại được trọng dụng, phục chức vụ như cũ.
IV. LOẠI HÌNH DỊ TÍCH
Từ chỉ họ Trần Danh ở Yên Sở là nơi thờ phụng và tưởng niệm Trần Danh Tiêu và các vị tiên tổ họ Trần Danh nên thuộc loại di tích lịch sử, dạng nhà thờ danh nhân.
V. KHẢO TẢ DI TÍCH
Từ Chỉ họ Trần Danh là nơi các con cháu họ Trần xây dựng nên để thờ vì khởi tổ họ là Trần Danh Tiêu và các vị tổ khác của họ. Từ chỉ tọa lạc trên khu đất đẹp có địa thế đẹp sát liền con đường trục của xã.
Từ chỉ được dòng họ Trần Danh xây dựng từ đầu thời Nguyễn. Quy mô của Từ chỉ khá bề thế với nhiều hạng mục công trình. Hạng mục đầu tiếp sát liền với đường làng là nghi môn. Nghi môn của Từ chỉ được làm theo kiểu trụ biểu bề thế uy nghi. Hai cột trụ lớn tạo nên lối đi chính. Thân cột trụ được xây gờ chỉ nổi khắc các đối câu đối Hán Nôm. Đầu trên cột trụ có bổ ô lồng đèn. Trên cùng là tứ phượng chầu cách điệu bông hoa. Hai bên đôi trụ chính là 2 cột trụ biểu nhỏ tạo nên tam môn.
Qua cổng nghi môn là tới bức bình phong đắp bằng với vữa. Bình phong được xây dựng theo hình thức cuốn thư đặt trên đẳng thờ. Mặt ngoài cuốn thư đắp nổi 4 chữ "Ấm thủy tư nguyên" (uống nước nhớ nguồn). Mặt trong cuốn thư đáp 3 chữ "Thiên đường tự". Bên trong bình phong là một khoảnh sân tạo nên lối vào khu Từ chỉ.
Khu chính Từ chỉ được xây dựng lộ thiên dưới bóng hàng dừa xanh Yên Sở. Hai cột trụ biểu cao hơn 2m tạo một lối vào rộng 1,4m. Trên thân 2 cột trụ là các đôi câu đối ca ngợi Tiến sĩ Trần Danh Tiêu. Các bức tường lửng cao 0,9m bổ ô hoa vây quanh một khu vực Từ chỉ rộng 5m, dài 8m. Phía cuối Tử chỉ, bức tường hậu được xây cao hình tam giác cân với các gờ mép, chóp đắp nổi hoặc lộng các đường hồi văn cách điệu tạo hình trang trí. Chính giữa là tấm bia đá "Trần tộc bi ký" cao 42cm, rộng 34cm ghi chép ngày giỗ vị khởi tổ họ Trần và các đời kế tiếp. Bia đặt trong nhà bia bán mái liền tường hậu. Hai bên nhà bia nổi gờ đắp nổi đôi câu đối:
" Cổ Sở Đông Á thị
Hậu Lê Tiến sĩ từ"
Phía ngoài bia là bệ thờ và đẳng thờ xây bằng vôi vữa. Ở phía bên trái, sát tường hậu của Từ chỉ còn một bia đã đựng năm Gia Long thứ 5 (1806), bia ghi thể thứ các đời.
Ở cùng thửa đất, về phía bên phải Từ chỉ là hai hạng mục công trình mới được sửa chữa, phục hồi. Gần phía ngoài nghi môn là "Thiên đường tự" - nơi dòng họ Trần Danh phụng thờ giời đất, phụng thờ quan tiến sĩ Đồng các Đại học sĩ Phượng lĩnh bá Trần Danh Tiêu. Ngôi nhà 3 gian có trần hiên, tường hoa chấn mái theo kiểu thức nội tự ngoại khách. Mặt trước nhà mở 3 cửa theo kiểu cuốn vòm. Phía trên cửa chính đắp nổi 3 chữ "Thiên tự lập". Lòng nhà được ngăn đôi theo chiều ngang thông nhau qua 3 cửa. Gian trong là nơi bài trí ban thờ, gian ngoài để trống. Ngôi nhà bên trong là nhà lưu niệm 3 gian, đổ trần mái. Từ sân, qua 3 cửa cuốn vòm lên hiên nhà. Các phía nhà xây tường gạch. Phía trước có 3 cửa đi làm kiểu cửa pano bản lề thông ra hiên rộng. Trong nhà là nơi trưng bày các tư liệu hình ảnh lưu niệm của đòng họ và là nơi hội họp của các thành viên trong họ trong các dịp giỗ, tết.
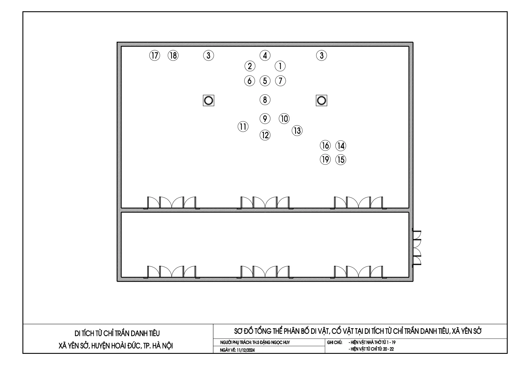
VI. CÁC DI VẬT
Khu Từ chỉ thờ Tiến sĩ Trần Danh Tiêu hiện còn lưu giữ được các Di vật sau:
Hai tấm bia đá. Tấm bia đá "Thần tộc bị ký" cao 42cm, rộng 34m có 19 dòng chữ ghỉ các ngày giỗ họ các vị tiên tổ ở một mặt bia. Tấm bia đá “Trần tộc bi ký" cao 91cm rộng 50cm dày 11,5cm dựng năm Gia Long 5 (1806).
Bát hương sứ men trắng hoa lam đường kính 30cm; cáo 28cm.
Trong nhà Thiên Đường Tự có các di vật:
Hương án làm bằng gỗ chạm, sơn thếp cao 1,45m rộng 1,45m x 0.72m.
- Bức hoành phi "Thiên đường Tự".
- Một đỉnh đồng được làm theo hình thức trúc hoá.
- Hai bát hương sử
Giá văn, tàn, lọng, cờ quạt và các hình ảnh tư liệu của đồng họ trưng bày trong nhà lưu niệm.
VII. LỄ HỘI TRUYỀN THỐNG:
Hàng năm, cứ vào dịp đầu xuân năm mới vào ngày 24 - 25 tháng giêng, các gia đình con cháu trong tất cả 4 chỉ họ Yên Sở. Mai Lĩnh, Đoản Nữ và Đại Phẩm lại tụ họp nhau tại Từ chỉ và nhà thờ dòng họ Trần Danh để làm lễ tế tổ. Trong ngày này, con cháu trong dòng họ sắm lễ là trình với các cụ tổ họ những thay đổi trong năm và ôn lại những cống hiến của các vị tổ tiên với dòng họ, với dân làng đất nước. Từ chiều ngày 24, làm lễ cáo và ngày 25 tháng giêng làm lễ chính Tế. Lễ Tế được thực hiện ở Từ chỉ là chủ yếu, sau đó mới về nhà thờ để tế.
Ngày 1 tháng 9 hàng năm là ngày giỗ của danh nhân Trần Danh Tiêu, con cháu trong họ cũng tự họp, làm lễ tế tại Từ chỉ, tưởng nhớ công đức của Trần Tướng Công.
Những ngày giỗ các vị tổ khác trong họ, được coi là giỗ mọn, các con cháu các chỉ về có về không là tùy điều kiện cụ thể. Các gia đình trong họ tộc, khi có các việc vui mừng đều có lễ đến từ chỉ kính cáo với các vị tiên tổ với tấm lòng thành kính biết ơn công đức của tổ tiên. Lễ chay hay mặn tùy tâm và điều kiện của các gia đình.
VIII. GIÁ TRỊ LỊCH SỬ, KHOA HỌC, NGHỆ THUẬT, VĂN HÓA
Tiến sĩ Trần Danh Tiêu là một nhân vật lịch sử của dòng họ Trần Danh và của đất nước. Trong cuộc đời làm quan trải 43 năm, ông đã có nhiều công lao trong việc trị nước thi hành chính sự. Ông là con người trung trinh, cương trực, liêm khiết và quả quyết. Trọn đời, ông luôn là tấm gương sống cho đời về tinh thần lao động sáng tạo và cống hiến.
Từ chỉ thờ Trần Danh Tiêu là một di tích trong cụm di tích lịch sử văn hóa của làng Yên Sở. Di tích này có quy mô không lớn nhưng có vẻ đẹp hài hòa giữa quy mô di tích với khung cảnh và không gian thiên nhiên tạo nên một môi trường văn hóa trong những địa chỉ văn hóa của làng quê Yên Sở. Đây là nơi ghi dấu ấn về nơi sinh ra và trưởng thành của danh nhân Trần Danh Tiêu Đông các Đại học sĩ, Hàn lâm viện Thừa chỉ, Phượng lĩnh bá Trụ Quốc vị khởi tổ họ Trần Danh. Nơi đây cũng là nơi ghi dấu tín về tấm lòng thành kính biết ơn của các thế hệ cháu con dòng họ Trần Danh và dân làng Yên Sở đối với danh nhân Trần Danh Tiêu.
IX. TRẠNG THÁI BẢO QUẢN DỊ TÍCH
Từ chỉ thờ Trấn Danh Tiêu ở Yên Sở, Hoài Đức được xây dựng ở thế kỷ XVIII và đã qua nhiều lần trùng tu sửa chữa. Quy mô Tử chỉ, như hiện nay là được xây dựng ở thời Nguyễn. Do ảnh hưởng của thiên nhiên nhiên nắng khắc nghiệt nên hiện có một số hư hỏng. Các cấu kiện kết cấu kiến trúc đắp vẽ ở Từ chỉ bị sứt, gãy... Những hư hỏng này tuy chỉ là chi tiết nhưng ít nhiều có ảnh hưởng đến tổng thể di tích.
X. CÁC PHƯƠNG ÁN BẢO VỆ VÀ SỬ DỤNG DI TÍCH
Từ chỉ thờ Trần Danh Tiêu hiện nay do con cháu họ Trần Danh Chi Yên Sở trông nom bảo vệ. Di tích này nằm trong quần thể các di tích lịch sử văn hóa của làng Yên Sở, đã góp phần lớn trong việc giáo dục lòng yêu quê hương đất nước, tỉnh thần dân tộc cho các thế hệ con cháu. Ngoài ra, đó còn là nơi nghỉ ngơi, thăm quan, nghiên cứu. Để làm tốt hơn điều này, di tích cần được đặt dưới sự bảo vệ của Nhà nước. Dòng họ Trần Danh và chính quyền địa phương cần thống nhất, thành lập bản bảo vệ di tích để có các phương án đồng thời công việc sưu tầm, biên dịch các tư liệu với tôn tạo bảo vệ và sử dụng di tích nhằm phát huy tối đa tác dụng di tích trong tình xây dựng đời sống văn hóa cơ sở phù hợp.
XI. CƠ SỞ PHÁP LÝ BẢO VỆ DI TÍCH - KIẾN NGHỊ:
Từ chỉ thờ Trần Danh Tiêu luôn được các thế hệ con cháu trong họ trông nom cùng với hệ thống lệ làng tạo điều kiện về mặt pháp lý. Ngày nay, qua tổng kiểm kê di tích, căn cứ vào những giá trị lịch sử văn hóa của di tích đã nêu trên, căn cứ vào quy hoạch tổng thể các di tích của xã Yên Sở, Bảo tàng tổng hợp Hà Tây kết hợp với chính quyền đoàn thể địa phương và dòng họ Trần Danh am hiểu nghiên cứu khảo sát lập hồ sơ khoa học đi tích để trình các cấp xem xét, phê duyệt. Đề nghị UBND tỉnh xem xét, có quyết định bảo vệ di tích lịch sử văn hóa Từ chỉ Trấn Danh Tiêu để những di tích này có đầy đủ cơ sở pháp lý trong việc giữ gìn lâu dài và phát huy tác dụng di tích trong cuộc sống hôm nay.
Sơ đồ phân bố hiện vật

