LÝ LỊCH DI TÍCH ĐÌNH CÁT NGÒI, THÔN CÁT NGÒI, XÃ CÁT QUẾ HUYỆN HOÀI ĐỨC, THÀNH PHỐ HÀ NỘI
I. Tên gọi di tích tên gọi di tích
Được thống nhất sử dụng trong hồ sơ khoa học di tích đình cát ngòi nằm trên địa phận thôn các giỏi, xã Cát Quế, huyện Hoài Đức, thành phố Hà Nội. Đây là một công trình kiến trúc tín ngưỡng và là trung tâm sinh hoạt văn hóa của dân làng. Di tích được gọi theo tên địa danh của thôn các ngòi. Đình cát ngòi là tên gọi chính thức của di tích hai, các tên gọi khác của di tích và nguồn gốc tên gọi đó, di tích không còn tên gọi nào khác.
II. Địa điểm và đường đi đến di tích
Địa điểm di tích cát ngòi là một địa danh cổ thuộc xã Cát Quế, một trong 20 xã, thị trấn của huyện Hoài Đức nằm dàn trải trên đê sông đáy với những dải đất màu mỡ của vùng đất bùi theo địa danh hành chính thì huyện Hoài Đức được bao bọc bởi các huyện, phía bắc giáp huyện Đan Phượng, phía nam giáp huyện Phúc Oai và quận Hà Đông, phía tây giáp huyện Quốc Oai, phía đông giáp huyện Từ Liêm.
Địa hình của huyện nằm trong vùng chuyển tiếp giữa miền núi và đồng bằng, gồm ba vùng đồi núi, đồng bằng, vùng bãi. Cái tên Hoài Đức từ năm 622 thời thuộc đường huyện Hoài Đức được thành lập trên cơ sở tách huyện Tống Bình thành hai huyện Hoài Đức và giao chỉ. Sau đó năm 627 thì lại hợp nhất các huyện Hoàng Giáo, giao chỉ và Hoài Đức thành huyện Tống Bình.
Thôn Cát Ngòi ngày nay là một trong 10 khu dân cư nằm ở phía tây nam của xã Cát Quế, huyện Hoài Đức, thành phố Hà Nội. Đầu thế kỷ 19, xã Cát Ngòi nằm trong tổng Dương Liễu, huyện Đan Phượng, phủ Hoài Đức. Đến năm 1927, tổng Dương Liễu có thêm bốn thôn Cát Ngòi, một thôn vạn đại thần, thôn bãi chùa, thôn Ngô Sơn Tượng.
Sau cách mạng tháng 8 năm 1945 các ngòi thuộc xã Cát Quế huyện Hoài Đức. Tháng 4 năm 1946 sau cuộc bầu cử nhân dân cấp xã, Dương Liễu được nhập với xã Quế Dương và Mậu Hòa thành xã Dương Hòa, huyện Đan Phượng, tỉnh Hà Đông. Tháng 5 năm 1948 Hà Đông hợp nhất thành tỉnh Lưỡng Hà. Hai huyện Đan Phượng và Hoài Đức sát nhập thành liên huyện Bắc Tức là Liên Bắc hai xã Dương Hòa và Cát Khánh sáp nhập thành xã Dương Cát thuộc huyện Liên Bắc tỉnh Hà Đông.
Tháng 10 năm 1953 huyện Liên Bắc tách thành hai miền Bắc Liên Bắc và Nam lên bắc. Xã Dương Cát nằm ở miền Bắc Liên Bắc Tháng sáu năm 1957, xã Dương Cát được tách thành ba xã Vinh Quang, chiến thắng, Minh Khai, trong đó xã chiến thắng gồm Dương Liễu cũ, xóm khu một của thôn bãi chùa Vạn Đài thần của Cát Khánh và xóm mậu Hòa.
Năm 1970, xã chiến thắng trở lại tên gọi cũ là Dương Liễu thuộc huyện Hoài Đức, tỉnh Hà Tây. Cuối năm 1975, tỉnh Hà Tây hợp nhất với tỉnh Hòa Bình thành tỉnh Hà Sơn Bình Cát Ngòi thuộc huyện Hoài Đức, tỉnh Hà Sơn Bình. Năm 1980 các huyện Ba Vì, thị xã Sơn Tây, Thạch Thất, Phúc Thọ, Đan Phượng, Quốc Oai, Hoài Đức và một phần huyện Chương Mỹ thuộc thành phố Hà Nội. Năm 1990 tách tỉnh Hà Sơn Bình thành hai tỉnh Hòa Bình và Hà Tây thì huyện Hoài Đức thuộc tỉnh Hà Tây. Từ ngày mùng 1 tháng 10 năm 1991 thôn Cát Ngòi, xã Cát Quế cùng với các xã khác trong huyện Hoài Đức lại được chuyển về tỉnh Hà Tây.
Ngày mùng 1 tháng 8 năm 2008 huyện Hoài Đức trở thành một trong hai chín quận, huyện, thị xã thành phố Hà Nội thì xã Cát Quế thuộc huyện Hoài Đức, thành phố Hà Nội.
Hai đường đi đến di tích từ trung tâm thành phố Hà Nội xuôi theo đại lộ Thăng Long khoảng hai hai ki lô mét, đến đầu cầu tả đê sông đáy lễ phải xuống hướng chợ xấu chừng năm ki lô mét đến địa phận xã Cát Quế, sau đó rẽ trái theo đường làng là tới di tích. Đường đi thuận tiện cho các loại phương tiện giao thông đường bộ.
Ba la mã phân loại di tích, một phân loại di tích, di tích đình Cát Ngòi là nơi sinh hoạt văn hóa tâm linh của cộng đồng, là một công trình kiến trúc dân gian truyền thống thờ thành hoàng làng. Căn cứ kết quả khảo sát, nghiên cứu về di tích để phân loại di tích theo quy định tại điều 11 nghị định 9820 10 nghị định chính phủ ngày 21 tháng 9 năm 2010 thì đình Cát Ngòi thuộc loại hình di tích kiến trúc nghệ thuật.
Hai nên đại căn cứ vào quá trình khảo cứu tại di tích và sự hồi cố của các cụ cao niên trong làng cùng sự hiện diện của các hạng mục kiến trúc di vật. Hiện còn các đạo sắc phong thì đình Cát Ngòi được khởi dựng vào thời nguyễn.
Ba những lần trùng tu, sửa chữa, căn cứ vào lời kể của các cụ cao niên trong thôn thì năm 1911 trùng tu tiền tế đại bái hậu cung, năm 1978 sửa và thay một số cột đại bái, năm 1994 sửa mái tiền tế đại bái hậu cung, 52.000 tu sửa hành vui đảo ngói năm 2011 đảo ngói tiền tế đại bái hậu cung.
Bốn la mã sự kiện, nhân vật lịch sử. Đặc điểm của di tích, một sự kiện và nhân vật thờ là một trong 10 khu dân cư của xã Cát Quế. Cát Ngòi là địa danh cổ nằm trong vùng địa linh Hoài Đức che chắn ở mạn phía tây kinh thành Thăng Long xưa. Theo tấm bản đồ vẽ vào thời Nguyễn hiện lưu giữ tại chi họ Hoàng Giáp Nguyễn Thúc Thông, thôn cuối dương, xã Cát Quế, thì thôn Cát ngòi vào thời điểm đó có địa hình nằm theo thế hồi long cố thủy, được bao bọc bởi bốn phía, phía đông giáp đê tả ngạn sông đáy, phía tây giáp rồng chảy, đáy giang, phía nam giáp Châu Thổ xã Yên Sở, phía bắc giáp Châu thổ, xã Quế Dương và Dương Liễu. Chính vì thế địa lý như vậy, cắt ngòi mang tính chất như một vệ tinh xoay xung quanh vùng đất có nhiều di tích cổ và đậm đặc.
Có thể nói Cát Quế là xã hội tụ những ngôi già lam cổ tự như chùa Đại Bi với bệ đất nông thời Mạc có giá trị đặc biệt. Đây cũng là quê hương của Hoàng Giáp Nguyễn Thúc Thông thời Mạc và tiến sĩ Nguyễn Tiên Soạn thời Lê. Những nhân vật này đã đóng góp hào quang cho quê hương Cát Quế. Theo hồi cố của một số cụ cao niên trong làng thì đình cát ngòi là nơi phụng sự một vị quan có công tu sửa lại con đê đoạn từ Song Phương chạy đến thị trấn Phùng vào khoảng thời Lê. Có ý kiến khác lại cho rằng đình cát Ngòi thờ một vị đạo sĩ có công hàn khẩu đoạn đê bị vỡ ở quán nước thôn Tiền Lệ, xã Tiền Yên cùng huyện.
Trong chuyến khảo sát điền dã, tổ lập hồ sơ chỉ tiếp cận được với các bức hoành phi, câu đối ca ngợi công lao của đức thành hoàng làng. Ngoài ra, tổ công tác còn tiếp cận được bản khai thần tích thần sách ký hiệu tê tê ét 0298 của viện thông tin khoa học xã hội do ban khánh tiết và hội kỳ lão của làng cung cấp. Song bản khai thần tích này ở mục một la mã và mục hai la mã cũng chỉ thấy ghi thành hoàng làng cắt ngòi hiệu là thượng đẳng thần, húy là Ngô Ngài là thiên thần. Vì thế tổ lập hồ sơ phải căn cứ vào hai đạo sắc phong niên hiệu khải định lần hai và khải định chín 1924 để làm căn cứ. Đạo sắc phong năm khải định thứ hai có những nội dung như sau.
Phiên âm sách Hà Đông tỉnh Đan Phượng, huyện Các Ngòi xã Phụng Sự bản cảnh, thành hoàng làng Lê Phủ tri thần họ quốc tí dân nắm chứ linh ứng tứ kim phi ưng cảnh mệnh diễn niệm thần hưu chứ phong vi đôn ngưng dực bảo trung hưng tôn thần chuẩn kỳ phụng sự độ cơ thần kỳ tương hữu bảo ngã Lê Dân Khâm tai Khải Định nhị niên tam nguyệt thập bát nhật.
Dịch nghĩa, cấp sắc cho xã Cát Ngòi huyện Lan Phượng, tỉnh Hàng Đông. Phụng sự, bản cảnh, thành hoàng làng Linh Ứng chi thần thần và bậc linh ứng giúp nước an dân, công lao hiển hiện nay bản cạnh mệnh đã ra ơn và phong cho là, đôn ngưng dực bảo trung hung tôn thần, chuẩn cho bá quán phụng thờ vào dịp lễ tiết thần hãy che chở và chăn dắt cho muôn dân của ta. Kính vậy thay, ngày 2 tháng 3 năm Khải Định 2 năm 1917.
Như vậy, bước đầu có thể tạm kết luận rằng thành hoàng làng cát ngòi là người che chở cuộc sống tâm linh trong cuộc sống thường niên của người dân nơi đây, đã được chính quyền phong kiến, ban cho là bản cảnh thành hoàng linh phù chi thần.
Hai sự kiện cách mạng kháng chiến trong kháng chiến chống pháp, chống Mỹ, đỉnh cát ngòi là nơi có hầm bí mật dưới gầm bên trái lại bái để che giấu cán bộ cách mạng trong kháng chiến chống Mỹ Đình là nơi cất chứa lương thực và nuôi dưỡng các cán bộ trong thôn. Có hàng trăm thanh niên lên đường làm nghĩa vụ quân sự, thanh niên xung phong hỏa tuyến cống hiến tuổi thanh xuân vì sự nghiệp chống Mỹ cứu nước. Những đóng góp đáng kể của nhân dân cát ngòi đã góp phần cùng nhân dân trên cả nước làm nên chiến thắng vẻ vang của dân tộc. Trong thôn có nhiều liệt sĩ và thương binh, bà mẹ Việt Nam anh hùng, gia đình có công trong cuộc kháng chiến và một số huân huy chương khác.
Năm La Mã sinh hoạt văn hóa, tín ngưỡng liên quan đến di tích một nhỏ lễ hội truyền thống. Một chấm một về thời gian tổ chức lễ hội hàng năm, nhân dân làng cắt ngòi tổ chức lễ hội từ ngày mười đến ngày mười hai tháng ba âm lịch để tưởng nhớ tới công lao của thành hoàng làng đã che chở và âm phủ cho nhân dân ấm no, một chấm hai các công việc chuẩn bị cho lễ hội, công việc, chuẩn bị lễ hội từ ngày mồng một đến ngày mười hai tháng ba âm lịch, ban tổ chức phân công trách nhiệm cho các cụ cùng tham gia từng công việc cụ thể
Một chấm ba các nghi lễ cúng tế a lễ mộc dục. Nước để làm lễ được lấy tại giếng làng do cụ từ lấy về, đựng bằng chóe, khi làm lễ, nước không pha gì mà tinh khiết. Khăn lễ thường dùng màu đỏ vải lụa do ban khánh lễ chuẩn bị, tiền mua do nhân dân công đức sau buổi lễ, nước được tưới cây trong khu di tích, khăn dùng vào việc khác.
Bê lễ vật dâng cúng tại lễ đình gồm hai lễ thượng đẳng và bệ hạ, thường được đặt ở ban thờ chính giữa, tức là ban thượng đẳng, và bộ hạ. Lễ vật do hội kỳ lão và các giải chuẩn bị, gồm xôi, oải, hoa quả, thịt lợn vàng, hương lễ vật do các giáp cụm từ và hội kỳ lão chuẩn bị làm từ gạo nếp. Họa cái hoa vàng thịt lợn ngon và đủ xôi theo lối truyền thống, sau đó in ảnh và chuyển sang mâm sau khi hoàn thành cụ từ mang xuống đình sắp lễ
c văn tế, người viết văn tế do dân làng cử. Người viết văn là người có đức hạnh và có trình độ hiểu biết. Đồng thời văn tế được biết tại quán do thầy tự viết văn viết và dịp tết nguyên đán hằng năm, nội dung văn tế nêu công lao to lớn của đức thành hoàng làng cổ cho quốc thái dân an, làng xóm Bình Yên làm ăn phát đạt. Văn tế viết xong đặt tại hộ cung. Khi văn tế chuyển ra tuyên trúc thì có người chuyển theo hướng tây, từ tả sang hữu. Khi đọc xong quan viên có trách nhiệm hóa tại chỗ vào thau đồng.
Bàn tế bàn tế gồm mười bảy thành viên, gồm một chủ tế, hai đăng, năm đài, hai tây sướng, hai đông sướng, một đọc văn, một bồi tế chọn ban tế theo tiêu chuẩn khỏe mạnh, sạch sẽ không có tang bụi chủ tế, mặc áo đỏ, mũ đỏ, hia đỏ, áo có rồng và bối tử, còn các thành viên khác của ban tế quần áo phụng màu xanh, mũ xanh và hia cũng màu xanh
Ê các tuần tế trong thời gian hội làng thực hiện ba buổi tế, một tế nhập tịch, một tế chính tịch, một tế mãn tịch. Thời gian tế diễn ra ngày mùng 10 tháng 3 tế trình vào buổi tối ngày 12 tháng 3 tế trình vào buổi tối ngày 13 tháng 3 tế giã vào buổi chiều mỗi buổi tế diễn ra ba tuần rượu trong buổi tế có nhạc và chiêm trống và một hành sớ, một hành á và ba hành chung.
Ê rước kiệu ngày hội có tổ chức rước kiệu, kiệu vân và kiệu hoa, chuẩn bị từ ngày 10 tháng 3. Thành viên tham gia gồm 12 người. Người khênh kiệu thay nhau gồm 10 bát bửu 10 chấp kích, bốn dùi đồng, hai cụ cầm hai kiếm vía đi trước kiểu 50 cờ thần, 40 hài đồng, nam cầm cờ đuôi nheo từ năm đến 10 tuổi. Đoàn rước y từ đình sang chỗ viết văn, làm lễ xong lại rước về theo hướng đông sang tây và rước theo đường trục chính vòng quanh làng. Đoàn bước đi đầu là cờ tổ quốc, cờ đuôi nheo, cờ thần hai hàng, đội nhạc múa sinh tiền, sau đó kiệu hoa, kiệu văn, kiệu chính, tiếp đến là các cụ kỳ lao, cục vãi và các đoàn thể.
140 phần hụi trong các dịp lễ hội hàng năm, dân làng tổ chức các trò chơi dân gian như đánh đu, chọi gà, vật, cờ tướng cứ đến lễ hội, chính người dân trong làng cùng các con cháu ở xa đều về dự hội để tưởng nhớ tới công lao ơn đức của vị thành hoàng làng và cầu mong một điều tốt đẹp. Đây chính là sự tri ân của dân làng với đức thánh hoàng làng và cũng là sự thể hiện ước vọng muôn đời của cư dân nông nghiệp.
Hai các ngày lễ khác và những hoạt động văn hóa trong di tích. Ngoài ngày lễ hội đình Cát Ngòi còn có các ngày kỷ niệm khác và tuần tiết như sau, rằm tháng giêng, tết đoan ngọ, mùng 5 tháng 5 cơm mới, mùng 10 tháng 10, mồng một và rằm hàng tháng lễ vật dung cúng gồm xôi và oản quả. Để chuẩn bị cho tết nguyên đán người dân nơi đây còn chuẩn bị vào các ngày 23 tháng chạp 30 tết, lễ tất niên, lễ giao thừa đều phân công cụ từ và ban khánh lễ tức trực để đón tiếp nhân dân đến lễ. Ngoài ra, tại di tích còn diễn ra lễ mừng thọ lên lão đỗ đạt khuyến học.
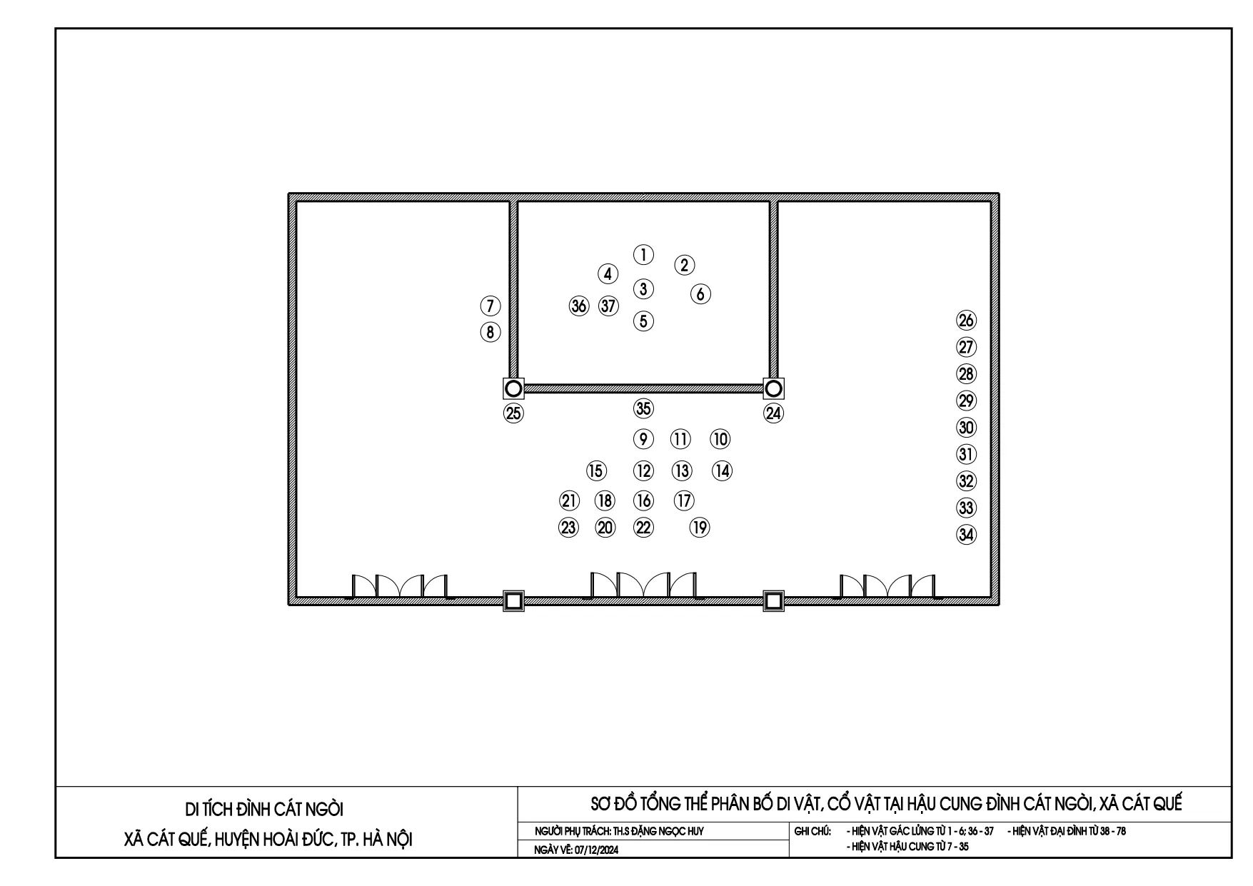
Sơ đồ phân bố hiện vật




